Belsize road
NO LONGER AVAILABLE
South Hampstead NW6
£496pw (£2150pcm)
Penthouse, Furnished
1
1
1
Or call our West Hampstead office:
NO LONGER AVAILABLE
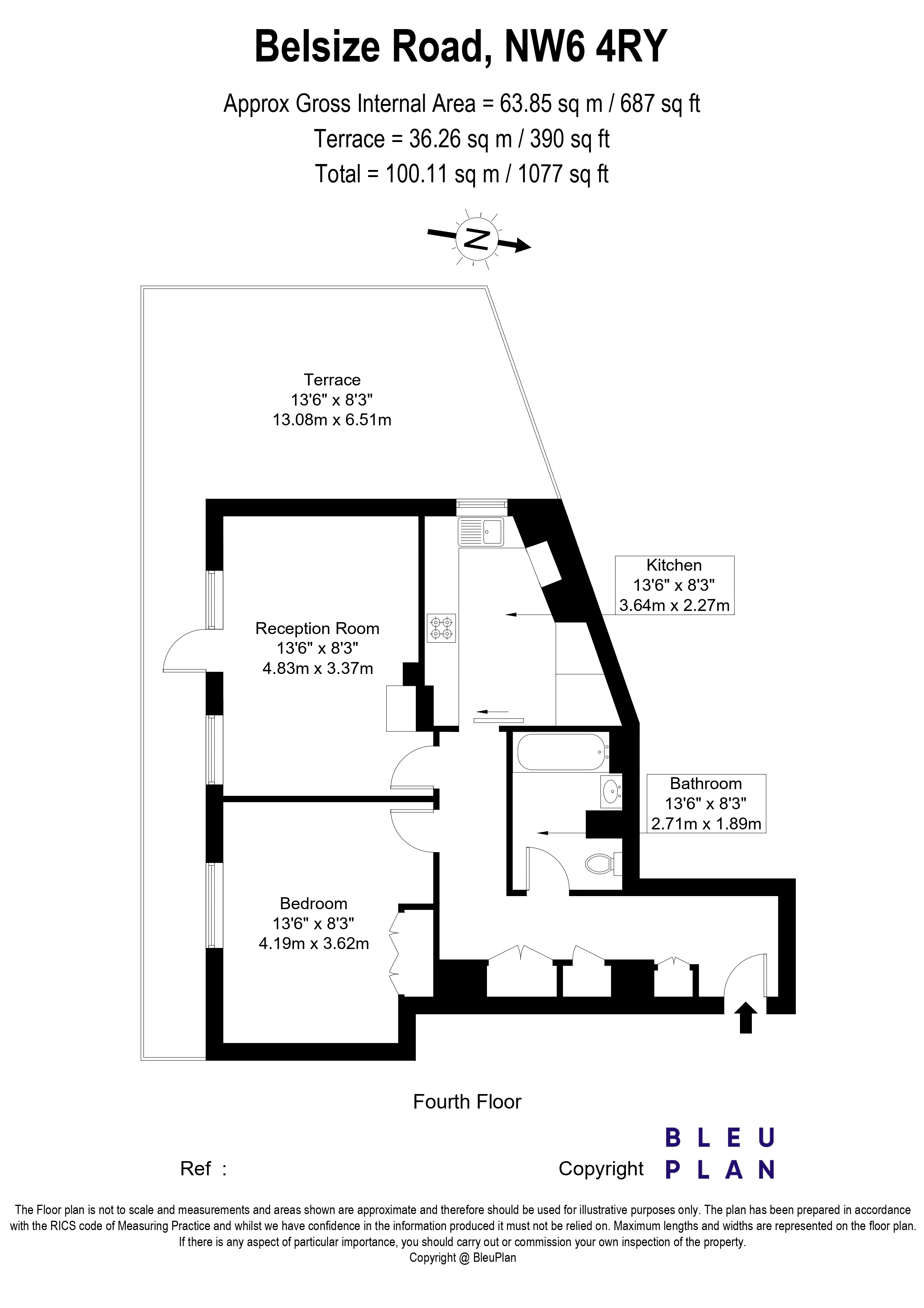
Penthouse Apartment
A superb opportunity to rent a beautifully refurbished one-bedroom penthouse apartment situated on the ever-popular Belsize Road, NW6. Occupying the top floor of a well-maintained building with lift access directly to the flat, this exceptional home offers over 650 square feet of stylish and practical living space, ideal for professionals or couples seeking a peaceful retreat in a vibrant and well-connected area.
A superb opportunity to rent a beautifully refurbished one-bedroom penthouse apartment situated on the ever-popular Belsize Road, NW6. Occupying the top floor of a well-maintained building with lift access directly to the flat, this exceptional home offers over 650 square feet of stylish and practical living space, ideal for professionals or couples seeking a peaceful retreat in a vibrant and well-connected area.
The apartment has been thoughtfully updated throughout, featuring brand new carpets and having been recently repainted, giving it a fresh, modern feel. The property boasts an excellent layout, including a generous double bedroom with extensive built-in wardrobes, offering ample storage without compromising on space. The separate kitchen is fully fitted and well-proportioned, ideal for those who enjoy cooking and entertaining.
One of the standout features of this penthouse is the large private roof terrace, accessible from the reception area. Bathed in sunlight, it provides a perfect space for outdoor dining, relaxation, or entertaining guests, with far-reaching views across the surrounding area. The spacious living room offers a comfortable and bright environment with plenty of room for both lounging and dining, further enhancing the apartment’s appeal.
Situated within easy reach of South Hampstead, Swiss Cottage, and West Hampstead, the property is perfectly positioned for access to excellent transport links, local cafes, restaurants, and a wide range of amenities. Despite its central location, the apartment offers a sense of privacy and calm, with the added benefit of being positioned at the top of the building.
This is a rare opportunity to secure a well-proportioned, newly refreshed penthouse apartment in a sought-after NW6 location. Available now and offered unfurnished or part-furnished by negotiation.
