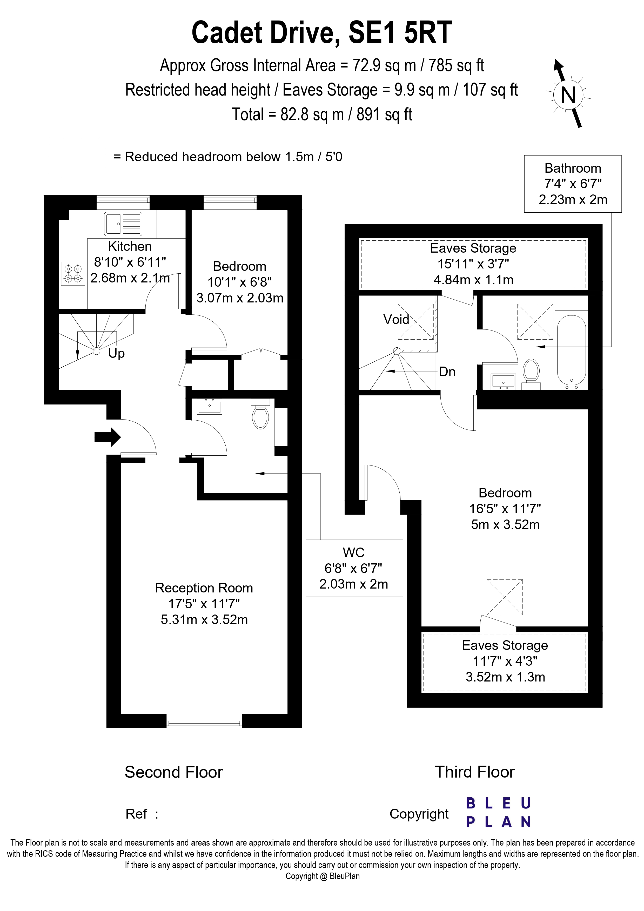
Cadet Drive
NO LONGER AVAILABLE
Bermondsey SE1
£430 (£1864pcm)
Apartment, Part Furnished
2
1
1
NO LONGER AVAILABLE
Duplex apartment flooded with natural light and very good storage
Bright and airy and offering over 775 Sq. Ft of living and entertaining.
Arranged over two floors (Top two) this larger than average two bedroomed apartment ( 750 sq.Ft. / 72 Sq.Mts.) has been recently redecorated. Neutral decor throughout with very good storage, separate kitchen and generous rooms.
For transport this beautiful duplex apartment is situated between either Bermondsey Tube Station or Bermondsey Trian Station. Minutes from the property numerous buses offer a good connectivity all over town. Bus routes include daytime routes 21, 53, 172, 363, 415, 453, and night buses N21, N53, and N63, with routes 381 and N381 serving some sections.
These services connect to areas such as London bridge, Borough, Elephant and Castle, Waterloo, Kings Cross and going south to Greenwich or Lewisham.
Two professionals maximum due to license constraints.

