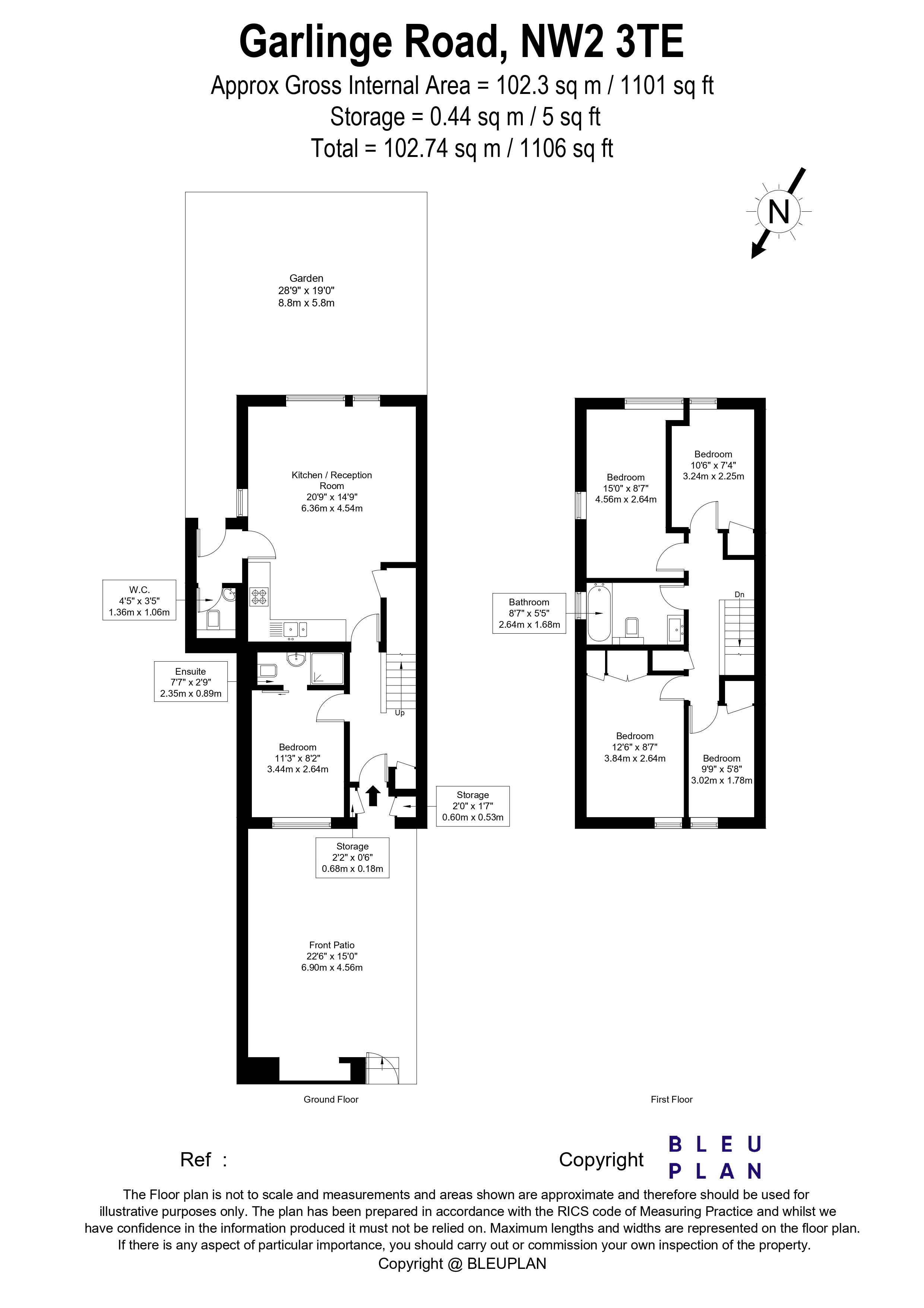
Garlinge Road
West Hampstead NW2
£923pw (£4000pcm)
House, Not Specified
4
2
1
Or call our West Hampstead office:
Recently renovated house
This beautifully refurbished property offers spacious and versatile accommodation, ideal for a family or a group of professional sharers seeking a comfortable and contemporary home in a convenient location.
The house has been tastefully renovated throughout to a high standard, combining modern finishes with bright, well-proportioned rooms. The ground floor features a welcoming entrance hallway leading to a large reception room filled with natural light, perfect for both relaxing and entertaining. The modern kitchen is fully fitted with quality appliances. The private garden offers an ideal setting for outdoor dining and leisure.
The property comprises four generous double bedrooms and a separate study, offering flexible options for home working or use as a guest room. There are two stylish bathrooms finished with modern fixtures and fittings, along with an additional separate toilet for convenience.
The property further benefits from new flooring, contemporary décor, and efficient lighting throughout. The garden provides a private and peaceful outdoor space, ideal for families or those who enjoy gardening or hosting gatherings.
Garlinge Road is a quiet residential street in NW2, well located for a range of local amenities including shops, cafés, and schools. Excellent transport links are available nearby, providing easy access to central London and surrounding areas.
Offered either furnished or unfurnished, this lovely home is available now and ready to move into immediately. Perfect for families or professional sharers looking for a modern, spacious property in a desirable area.
