Or call our West Hampstead office:
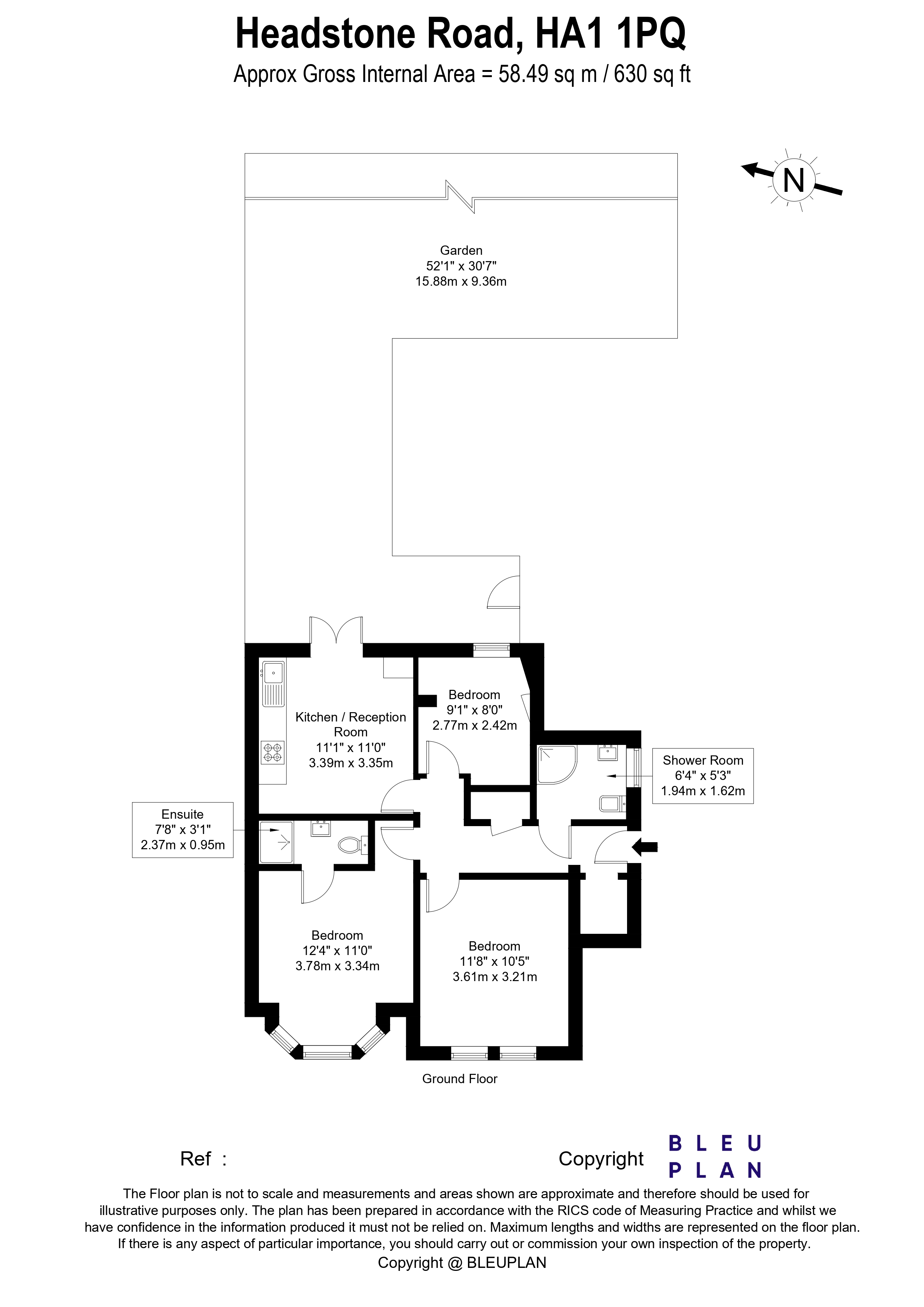
The property features a bright open-plan kitchen and reception area, stylish wood flooring, and double-glazed windows throughout. Comprising three well-proportioned bedrooms and two contemporary bathrooms, the home also benefits from its own private entrance and a private garden, perfect for relaxing or entertaining. Ideally located just a five-minute walk from Harrow-on-the-Hill Station, providing excellent transport links.
Black Katz makes every reasonable effort to ensure that all the information on this website is accurate. However, no guarantees for the accuracy of information are made and we make no warranties of any kind, whether expressed or implied, in respect of the information supplied. The information contained on this website does not form part of an offer or contract. Before making an offer to rent a property seek independent or professional advice.
