Or call our West Hampstead office:
A rare and exciting opportunity to acquire a substantial freehold property on th
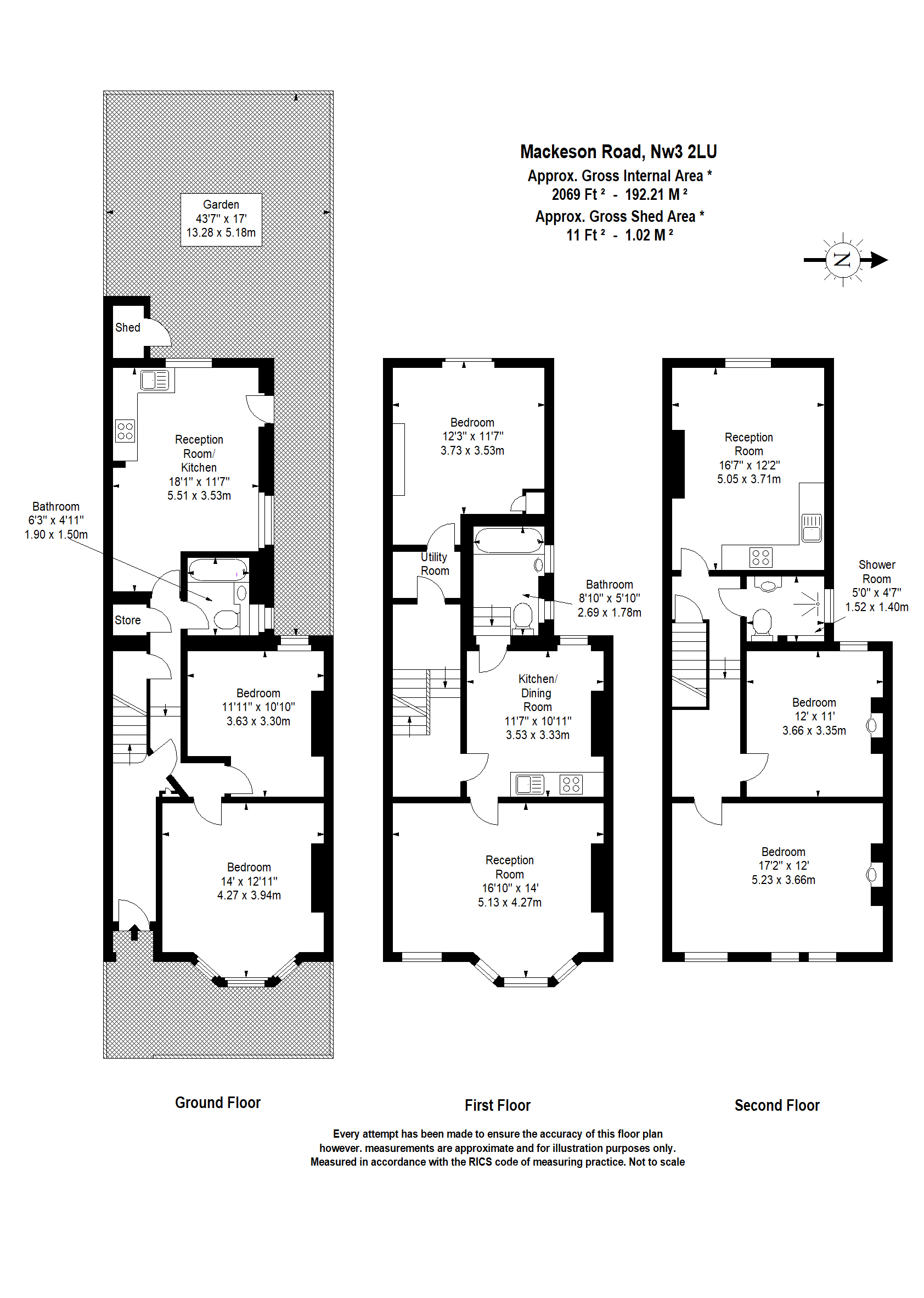
This imposing period building is currently arranged as three self-contained apartments, comprising two generously sized two-bedroom flats and one well-proportioned one-bedroom flat. Each unit offers bright and comfortable living accommodation with well-balanced layouts, making them highly attractive to tenants. While the property has been well maintained, it presents clear scope for modernisation, allowing an incoming purchaser to add considerable value through refurbishment and reconfiguration.
The building currently produces a total rental income in excess of £80,000 per annum, offering an immediate and reliable income stream. There is strong potential to further enhance rental returns through upgrading the interiors to meet modern standards and expectations, as well as optimising the configuration of the units (subject to the necessary consents).
Positioned within one of NW3’s most desirable residential pockets, the property benefits from consistently high rental demand driven by its proximity to a wide range of local amenities, green spaces, and excellent transport connections into Central London. The surrounding area is renowned for its village-like charm, vibrant café culture, and strong sense of community, making it particularly appealing to both professionals and long-term residents.
Opportunities of this calibre, particularly with such a long-standing ownership history, are exceptionally rare. The combination of location, scale, income, and future potential makes this a compelling proposition for investors, developers, and end-users alike.
Early viewing is highly recommended to fully appreciate the size, character, and scope this unique property has to offer.
