Tisdall House Barlow Street
Elephant and Castle SE17
£300,000 LEASEHOLD
Apartment
1
1
1
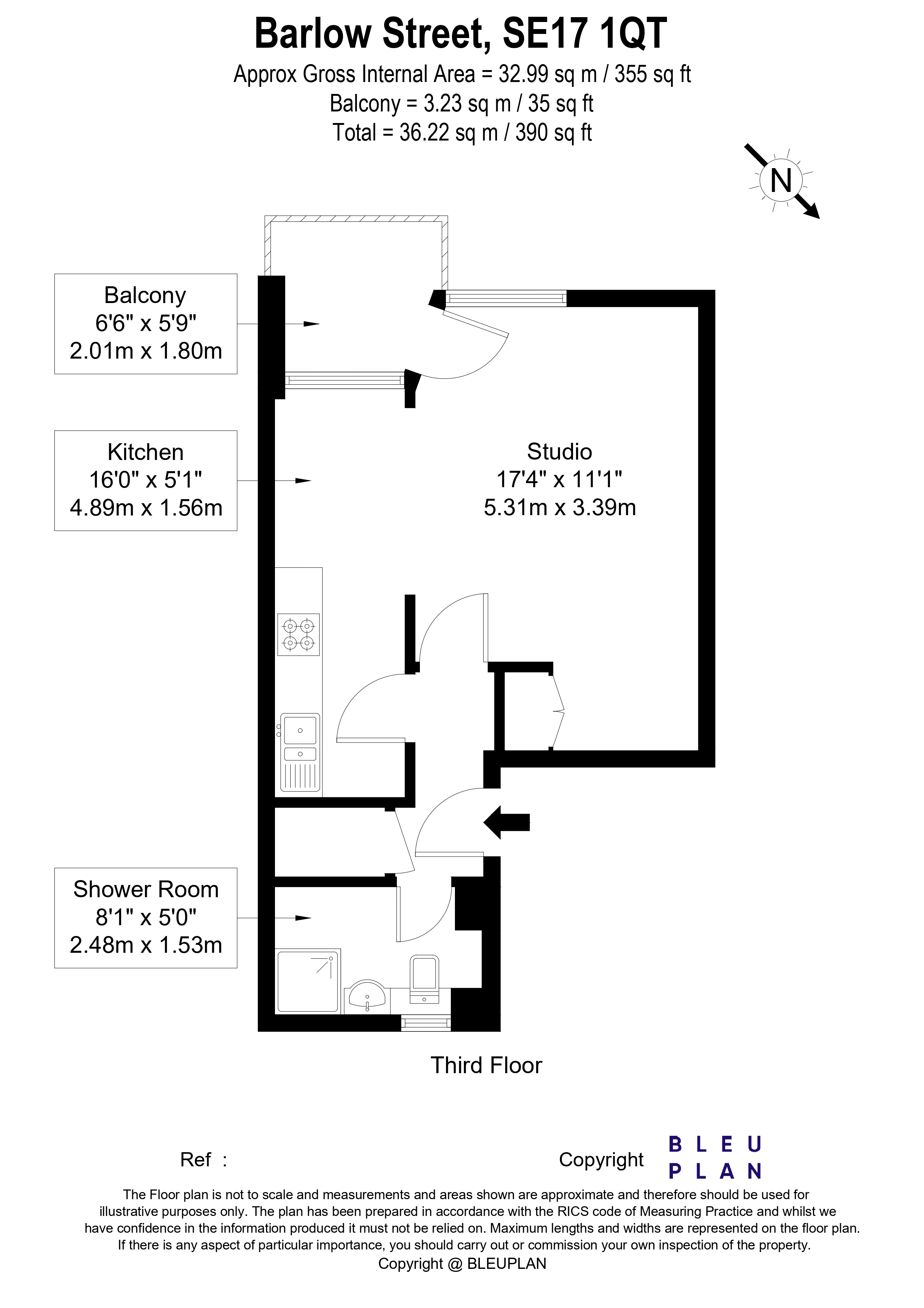
Top floor double studio with south facing balcony
Larger than average and recently redecorated throughout, semi open plan with wooden floors, modern bathroom with walk in shower and also benefiting from a charming private south facing balcony.
Heating and hot water including in the service charge.
Numerous buses from New Kent Road or Old Kent Road take you all over the city or a few stops to either Borough Tube Station (Northern Line) or Elephant and Castle Station (Bakerloo Line, Northern Line and overground).

